C ‘est au coeur de la résidence référencée Cap 347 sur notre site, que laVilla Kabrousse a été spécialement conçue pour maximiser l’espace sur des terrains d’une surface de 1023 m2 ET 1 007 m2 en offrant un cadre spacieux et fonctionnel. Elle allie confort et praticité.
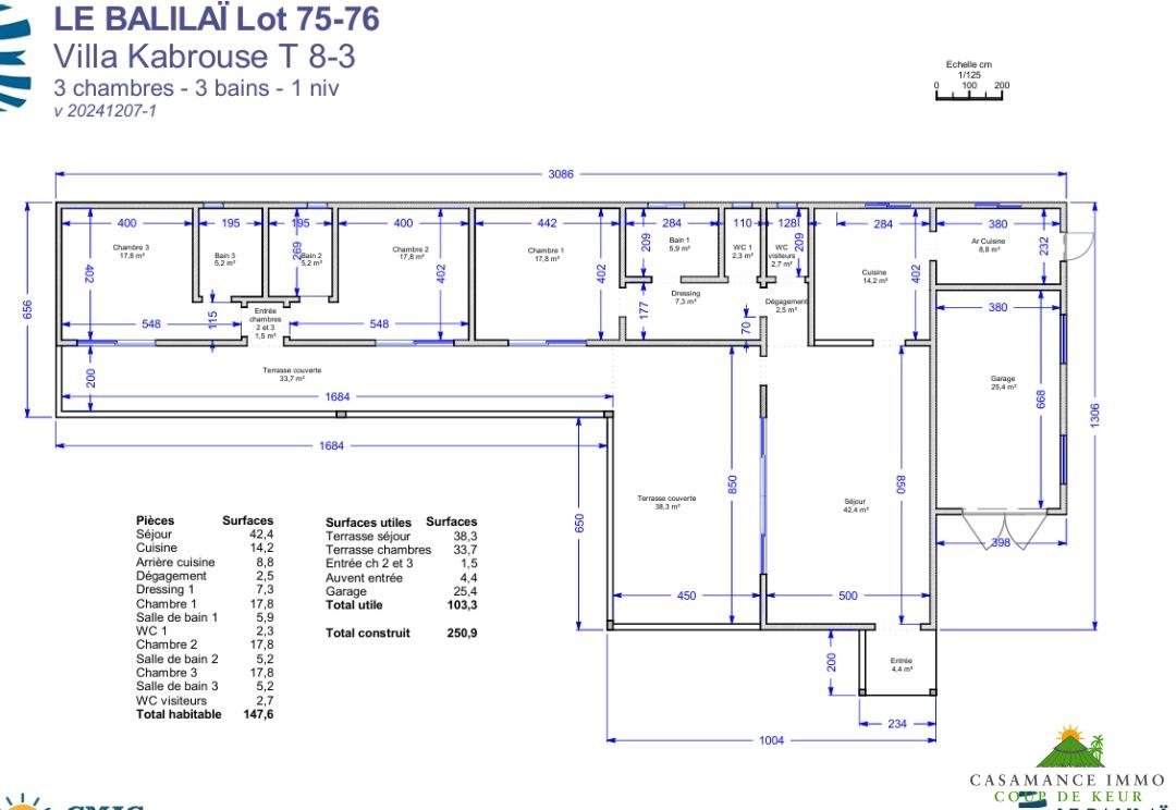
Le vaste séjour de 45 m² est un espace de vie, divisé harmonieusement entre un coin repas convivial et un espace télévision & lecture. Il s’ouvre sur une terrasse couverte de 45 m², parfaite pour se détendre,
recevoir, avec vue directe sur la piscine,(9m/3,5m) créant une continuité entre intérieur et extérieur.
Les trois chambres, chacune entre 20 et 22 m², sont généreusement dimensionnées et disposent de leur propre salle de bain avec WC. La chambre principale bénéficie en plus d’un dressing, apportant un confort supplémentaire.
La cuisine et l’arrière-cuisine, avec leur propre entrée réservée, sont idéalement situées à proximité du vestiaire du personnel, assurant une gestion fluide et discrète des tâches domestiques.
La Villa Kabrousse incarne un équilibre parfait entre élégance et fonctionnalité, offrant un cadre idéal pour profiter pleinement de la vie au soleil au bord de la piscines villas sont livrées climatisées, prêtes à meubler. Elles sont adaptables à vos souhaits, dans la limite des contraintes de construction.
Par exemple, pour une parfaite intégration à l’environnement et offrir une bonne isolation thermique, lesvillas sont couvertes de paille.
Le délai de construction se situe entre 12 et 18 mois, selon la taille des maisons. Certaines villas sont déjà construites, donc disponibles immédiatement. D’autres sont en construction, et d’autres… à réaliser, avec vous !
Les photos sont des modèles de villas similaires. A votre disposition tous les plans détaillés, les conditions d’acquisition et nombreux renseignements utiles; ainsi que les adresses des artisans ou entreprises pour meubler votre maison
prix lots 75 76 surface terrain 1023 m2 .364 380 Euros prix lot 77 78 surface terrain 1007 m2 382 125 Euros ( c’est le prix du terrain qui justifie la différence du monatant de la vente)